X
快速聯絡
諮詢專線:
線上諮詢:
或由專員為您服務,請留下
快速
聯絡

樺福千金總裁豪邸 頂溪共構宅

新北市永和區永和路二段168號19樓

  • Uhomes
  • Uhomes
  • Uhomes
  • Uhomes
  • Uhomes
  • Uhomes
  • Uhomes
  • Uhomes
  • Uhomes
  • Uhomes
  • Uhomes
  • Uhomes
  • 相片
  • 地圖
  • 建物平面圖
  • 法院拍賣公告
公告底價
10651萬
開標結果
待標中
  • 公告坪數
    137.58
  • 每坪單價
    77.41

    每坪單價以法院公告坪數概算,詳細拆算方式請洽專員。

  • 開 標 日
    2025/12/23 14:30
  • 拍  次
    2拍
  • 點交情形
    詳見公告
  • 保 證 金
    2131萬
聯 絡 人
趙先生
調整字級

物件資料
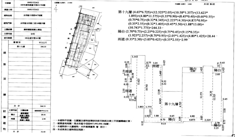
公 告 坪 數
137.58
主 建 坪 數
73.90
附 屬 坪 數
9.50
公 設 坪 數
33.88
其 他 坪 數
增 建 坪 數
土 地 坪 數
9.60
車 位 坪 數
20.30
車 位 屬 性
機械平面
捷 運/火 車
頂溪站
房 屋 類 型
電梯大樓
結   構
SRC
屋   齡
14
樓 層 別
19/19
房 屋 用 途
住宅
會員資訊

請登入會員查看

公告資料
拍 賣 地 點
臺灣新北地方法院
案   號
114年度司執字第127047號
拍 賣 範 圍
全部
拍 賣 原 因
清償票款
抵 押 權
抵押權拍定後塗銷
筆   錄
點交否:不點交

使用情形
一、拍賣標的3073建號建物:
㈠現場揭示查封時,按鈴無人應門。據社區總幹事稱:好像有出租他人。
㈡債務人陳報經公證之住宅租賃契約,拍賣標的目前由第三人張○真承租使用中,租期自民國114年1月6日起至117年1月5日止,每月租金新台幣9萬元(含車位);陽台處室內部分有漏水情形,管委會有派人檢修,尚未修復完畢。租賃契約上已載明:承租人已將三年租金總額共計324萬元,匯入出租人指定之帳戶。
㈢本件租賃關係經本院以執行命令終止(該執行命令尚未確定),如於拍定前無人異議或異議經駁回確定者則點交,否則不點交。
二、另依鑑價報告所載,本件標的經初步調查無海砂屋、輻射屋、地震受創、火災受損或非自然死亡等情形,惟若有因調查限度難以查明,致與鑑價報告內容所載容有出入者,請投標人逕向相關單位洽詢查明,綜合考量相關風險再行投標。

備註
一、上開不動產4宗合併拍賣,請投標人分別出價。
二、拍賣最低價額合計新台幣:106,510,000元,以總價最高者得標。
三、保證金新台幣:21,310,000元。
四、有抵押權設定,抵押權登記拍定後全部塗銷。
內容展開

本物件資訊如有遺漏,以法院公告為準。

地圖
公 告 底 價
10651
開 標 結 果
待標中
  • 公告坪數
    137.58
  • 每坪單價
    77.41

    每坪單價以法院公告坪數概算,詳細拆算方式請洽專員。

  • 開 標 日
    2025/12/23 14:30
  • 拍  次
    2拍
  • 點交情形
    詳見公告
  • 保 證 金
    2131萬
聯 絡 人
趙先生

留 言