X
快速聯絡
諮詢專線:
線上諮詢:
或由專員為您服務,請留下
快速
聯絡

冠德遠見 象山站

台北市信義區信義路五段95號3樓之1

  • Uhomes
  • Uhomes
  • Uhomes
  • Uhomes
  • Uhomes
  • Uhomes
  • Uhomes
  • Uhomes
  • Uhomes
  • Uhomes
  • Uhomes
  • Uhomes
  • 相片
  • 地圖
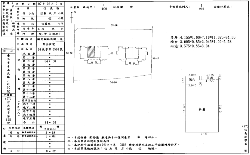
  • 建物平面圖
  • 法院拍賣公告
公告底價
5,603.2萬
開標結果
拍定5680萬
  • 公告坪數
    52.55
  • 每坪單價
    106.62

    每坪單價以法院公告坪數概算,詳細拆算方式請洽專員。

  • 開 標 日
    2026/01/20 09:30
  • 拍  次
    2拍
  • 點交情形
    點交
  • 保 證 金
    1121萬
聯 絡 人
趙先生
調整字級

物件資料
公 告 坪 數
52.55
主 建 坪 數
25.57
附 屬 坪 數
2.59
公 設 坪 數
11.27
其 他 坪 數
增 建 坪 數
土 地 坪 數
7.39
車 位 坪 數
13.12
車 位 屬 性
坡道平面
捷 運/火 車
象山站
房 屋 類 型
電梯大樓
結   構
SRC
屋   齡
19
樓 層 別
3/27
房 屋 用 途
住家用
會員資訊

請登入會員查看

公告資料
拍 賣 地 點
臺灣臺北地方法院
案   號
112年度司執字第157590號
拍 賣 範 圍
全部
拍 賣 原 因
清償債務
抵 押 權
抵押權拍定後塗銷
筆   錄
使用情形
一、2558建號建物現場查封時現為空屋狀態,無人居住使用,故拍定後點交,停車位位於地下2層,編號為92號,現已出租他人使用,並未簽定書面租約,每月租金為8000元,故停車位部分拍定後不點交,由拍定人自行解決。
二、2544、2545建號建物均為公設,本件係拍賣應有部分,拍定後不點交,因公設部分應與專有部分一併為移轉登記,故建號共有人無優先承買權。
三、拍賣標的經查相關主管機關後,並無發生非自然死亡情形,亦無發生過火災事件,亦非屬列管之海砂屋、輻射屋、地震受損屋,惟建物實際狀況仍須經專業人員辦理相關鑑定及偵測始能確認是否為海砂屋、有無輻射、有無地震受創,應由拍定人自行查明,請應買人注意。
備註
一、上開不動產4宗合併拍賣,請投標人分別出價。
二、拍賣最低價額合計新台幣:56,032,000元,以總價最高者得標。
三、保證金新台幣:11,210,000元。
四、抵押權拍定後均塗銷。
內容展開

本物件資訊如有遺漏,以法院公告為準。

地圖
公 告 底 價
5,603.2
開 標 結 果
拍定5680萬
  • 公告坪數
    52.55
  • 每坪單價
    106.62

    每坪單價以法院公告坪數概算,詳細拆算方式請洽專員。

  • 開 標 日
    2026/01/20 09:30
  • 拍  次
    2拍
  • 點交情形
    點交
  • 保 證 金
    1121萬
聯 絡 人
趙先生

留 言