X
快速聯絡
諮詢專線:
線上諮詢:
或由專員為您服務,請留下
快速
聯絡

宏得金陛一層一戶 復興高中

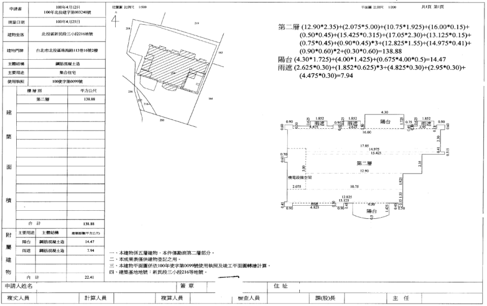
台北市北投區珠海路113巷16號2樓

  • Uhomes
  • Uhomes
  • Uhomes
  • Uhomes
  • Uhomes
  • Uhomes
  • Uhomes
  • Uhomes
  • Uhomes
  • Uhomes
  • Uhomes
  • Uhomes
  • 相片
  • 地圖
  • 建物平面圖
  • 法院拍賣公告
公告底價
4420萬
開標結果
停拍延緩
  • 公告坪數
    83.20
  • 每坪單價
    53.12

    每坪單價以法院公告坪數概算,詳細拆算方式請洽專員。

  • 開 標 日
    2026/01/08 10:30
  • 拍  次
    1拍
  • 點交情形
    點交
  • 保 證 金
    884萬
聯 絡 人
沈專員
調整字級

物件資料
公 告 坪 數
83.20
主 建 坪 數
42.01
附 屬 坪 數
6.77
公 設 坪 數
22.38
其 他 坪 數
增 建 坪 數
土 地 坪 數
33.86
車 位 坪 數
12.04
車 位 屬 性
坡道平面
捷 運/火 車
新北投站
房 屋 類 型
公寓
結   構
RC
屋   齡
15
樓 層 別
2/5
房 屋 用 途
住家用
會員資訊

請登入會員查看

公告資料
拍 賣 地 點
臺灣士林地方法院
案   號
113年度司執字第114893號
拍 賣 範 圍
全部
拍 賣 原 因
清償票款
抵 押 權
抵押權拍定後塗銷
筆   錄
使用情形
(一)31275建號建物拍定後點交。216地號土地拍賣不動產應有部分,拍定後不點交。
(二)114年4月14日現場查封時,債務人蘇怡樺在場稱,31275建號建物由其與另一債務人共同居住使用。該建物為為宏得金陛社區其中一戶,債務人有配附編號5號、6號之停車位,據債務人稱車位亦為債務人自己使用。惟現在實際情形如何,仍請應買人自行查明注意。

備註
一、以上不動產分別標價,合併拍賣,以總價最高者得標。
二、拍賣最低價額合計新台幣:44,200,000元。
三、保證金新台幣:8,840,000元。
四、抵押權登記拍定後塗銷。
五、投標人應自行查明債務人有無積欠管理費,並注意拍定後民法第826條之1第3項規定之適用問題。
六、投標日期:中華民國115年1月8日第1次拍賣。(上午10時30分開始投標,11時開標。)
內容展開

本物件資訊如有遺漏,以法院公告為準。

地圖
公 告 底 價
4420
開 標 結 果
停拍延緩
  • 公告坪數
    83.20
  • 每坪單價
    53.12

    每坪單價以法院公告坪數概算,詳細拆算方式請洽專員。

  • 開 標 日
    2026/01/08 10:30
  • 拍  次
    1拍
  • 點交情形
    點交
  • 保 證 金
    884萬
聯 絡 人
沈專員

留 言