X
快速聯絡
諮詢專線:
線上諮詢:
或由專員為您服務,請留下
快速
聯絡

Hi台北 十三行博物館

新北市八里區商港三路85號4樓

  • Uhomes
  • Uhomes
  • Uhomes
  • Uhomes
  • Uhomes
  • Uhomes
  • Uhomes
  • Uhomes
  • Uhomes
  • Uhomes
  • Uhomes
  • Uhomes
  • 相片
  • 地圖
  • 建物平面圖
  • 法院拍賣公告
公告底價
1,129.8萬
開標結果
待標中
  • 公告坪數
    54.23
  • 每坪單價
    20.83

    每坪單價以法院公告坪數概算,詳細拆算方式請洽專員。

  • 開 標 日
    2026/03/23 14:30
  • 拍  次
    3拍
  • 點交情形
    點交
  • 保 證 金
    226萬
聯 絡 人
吳經理
調整字級

物件資料
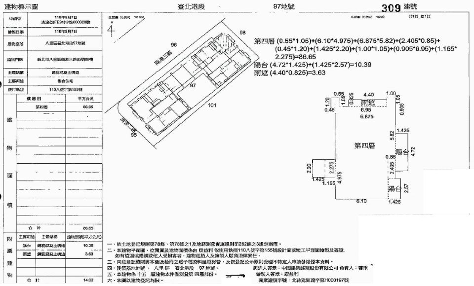
公 告 坪 數
54.23
主 建 坪 數
26.21
附 屬 坪 數
4.23
公 設 坪 數
13.37
其 他 坪 數
增 建 坪 數
土 地 坪 數
5.84
車 位 坪 數
10.42
車 位 屬 性
坡道平面
捷 運/火 車
房 屋 類 型
電梯大樓
結   構
RC
屋   齡
5
樓 層 別
4/15
房 屋 用 途
集合住宅
會員資訊

請登入會員查看

公告資料
拍 賣 地 點
臺灣士林地方法院
案   號
114年度司執字第32680號
拍 賣 範 圍
全部
拍 賣 原 因
清償票款
抵 押 權
抵押權拍定後塗銷
筆   錄
使用情形
㈠309建號(除停車位外)拍定後點交,其餘不動產係拍賣不動產應有部分,拍定後不點交。
㈡民國114年7月10日現場查封時,債務人在場稱309建號房屋係債務人及家屬自住,配賦有一位於B4之47號停車位,因停車位係拍賣共有部分,應由全體區分所有權人協議使用分管方法,故停車位不點交;465建號及469建號為公設。惟現在實際情形如何,仍請應買人自行查明注意。
備註
一、上開不動產4宗合併拍賣,請投標人分別出價。
二、拍賣最低價額合計新台幣:11,298,000元,以總價最高者得標。
三、保證金新台幣:2,260,000元。
四、以上不動產採分別標價,合併拍賣方式拍賣,請投標人分別出價,以總價最高者得標。
五、抵押權登記拍定後塗銷。
六、投標日期:中華民國115年3月23日第3次拍賣。(下午2時30分開始投標,3時開標。)
內容展開

本物件資訊如有遺漏,以法院公告為準。

地圖
公 告 底 價
1,129.8
開 標 結 果
待標中
  • 公告坪數
    54.23
  • 每坪單價
    20.83

    每坪單價以法院公告坪數概算,詳細拆算方式請洽專員。

  • 開 標 日
    2026/03/23 14:30
  • 拍  次
    3拍
  • 點交情形
    點交
  • 保 證 金
    226萬
聯 絡 人
吳經理

留 言