X
快速聯絡
諮詢專線:
線上諮詢:
或由專員為您服務,請留下
快速
聯絡

冬山市場透天店面

宜蘭縣冬山鄉冬山路313號

  • Uhomes
  • Uhomes
  • Uhomes
  • Uhomes
  • 相片
  • 地圖
  • 建物平面圖
  • 法院拍賣公告
公告底價
1420萬
開標結果
待標中
  • 公告坪數
    95.27
  • 每坪單價
    14.90

    每坪單價以法院公告坪數概算,詳細拆算方式請洽專員。

  • 開 標 日
    2026/05/20 15:00
  • 拍  次
    1拍
  • 點交情形
    點交
  • 保 證 金
    284萬
聯 絡 人
吳經理
調整字級

物件資料
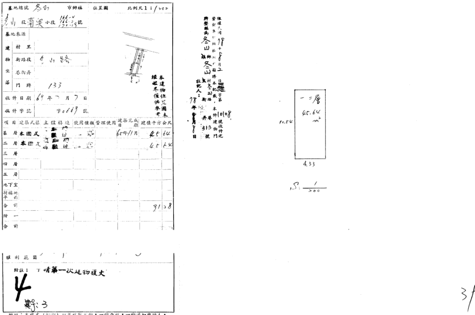
公 告 坪 數
95.27
主 建 坪 數
47.98
附 屬 坪 數
公 設 坪 數
其 他 坪 數
騎樓:4.51
增 建 坪 數
42.78
土 地 坪 數
32.13
車 位 坪 數
車 位 屬 性
-
捷 運/火 車
台鐵冬山車站
房 屋 類 型
透天厝
結   構
鐵筋加強磚造、RC造
屋   齡
50
樓 層 別
全棟/2
房 屋 用 途
住商用
會員資訊

請登入會員查看

公告資料
拍 賣 地 點
臺灣宜蘭地方法院
案   號
114年度司執字第26356號
拍 賣 範 圍
全部
拍 賣 原 因
拍賣抵押物
抵 押 權
抵押權拍定後塗銷
筆   錄
點交否: 點交

使用情形
一、拍賣標的物於民國114年10月23日到現場查封時,房屋為債務人及其家人自住使用,故本件拍定後點交。經詢問在場人,其表示房屋有嚴重漏水之情事。本院已盡力查證並揭露風險,請應買人仍應逕向相關單位洽詢查明,綜合考量相關風險再行投標,不得於拍定後再執前揭事由聲明異議或聲請撤拍,併予說明。
二、本標內暫編625建號建物,係未辦理建築物所有權第一次登記之不動產,拍定後拍定人不能持權利移轉證書辦理所有權移轉登記,亦不得以面積不符,請求減少價金,或撤銷拍定;且若該建物經建築主管機關認定為違章建築,拍定人應自行承擔受拆除之危險。
三、本件投標人於投標前請自行向地政事務所等相關機關調閱執行標的不動產之最新公開資訊,以資參酌評估。
四、拍賣之土地如於查封後經地政機關實施重測,其面積應以重測結果為準,拍定後債權人、債務人、拍定人或其他關係人均不得以面積增減請求增減價金或聲請撤銷拍賣。
五、本標130、131地號土地經查都市土地使用分區為商業區。

備註
一、上開不動產4宗合併拍賣,請投標人分別出價。
二、拍賣最低價額合計新台幣:14,200,000元,以總價最高者得標。
三、保證金新台幣:2,840,000元。
四、抵押權拍定後均塗銷。
內容展開

本物件資訊如有遺漏,以法院公告為準。

地圖
公 告 底 價
1420
開 標 結 果
待標中
  • 公告坪數
    95.27
  • 每坪單價
    14.90

    每坪單價以法院公告坪數概算,詳細拆算方式請洽專員。

  • 開 標 日
    2026/05/20 15:00
  • 拍  次
    1拍
  • 點交情形
    點交
  • 保 證 金
    284萬
聯 絡 人
吳經理

留 言